Città dello sport, Giunta approva variante ma con riserva su aree commerciali
La giunta Galimberti riprende in mano il Piano Integrato di intervento denominato “Città dello Sport”, tra via Mantova e via Postumia, accogliendo gli aspetti ritenuti ‘migliorativi’ della variante approvata ad aprile dalla giunta Perri, ma riservandosi di fare ulteriori valutazioni sull’utilizzo delle superfici destinate ad ospitare le attività complementari. Tra cui figurano eventuali usi commerciali, il cui insediamento alle porte della città aveva irritato (quattro anni fa, quando se ne parlò la prima volta) le associazioni dei commercianti cittadine.
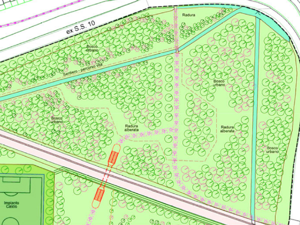
La variante al PII, su cui l’Us Cremonese ha già realizzato il centro di allenamento calcistico Giovanni Arvedi, datato 2010 e revisionato appunto ad aprile 2014, prevede la destinazione a bosco urbano di tutta l’area compresa tra la ferrovia e il rondò di via Zaist-via Mantova, su cui nella prima versione dovevano sorgere un insedimento di servizi complementari (commerciale) con parcheggio sotterraneo, pista di pattinaggio e skate e un impianto polivalente (con accesso indipendente da via Mantova). Questi edifici complementari ‘traslocano’ nell’area di sud est del comparto, compresa tra via Postumia, rondò di viale Concordia e bretella di collegamento al rondò della tangenziale. Un’area che nella prima versione doveva essere prevalentemente a verde, con una palestra polifunzionale e impianti polisportivi all’aperto e nella quale adesso di ipotizza un nuovo campo da rugby (di fianco alla cascina Corte) e altri due edifici destinati ad attività complementari e parcheggi. Tra le attività complementari si ipotizzano non solo esercizi commerciali di vicinato, ma anche social housing o altra impiantistica sportiva.
La variante come si diceva è stata approvata dalla giunta Galimberti, su proposta dell’assessore Andrea Virgilio, dopo aver ha esaminato le controdeduzioni pervenute entro i termini di legge. “Avremo altri incontri con i proponenti – afferma l’assessore – e ci siamo riservati di fare ulteriori valutazioni”.
g.b.


© RIPRODUZIONE RISERVATA